Area Summary
- Total Area:3480 Sq. Ft.
- Main Floor:1602 Sq. Ft.
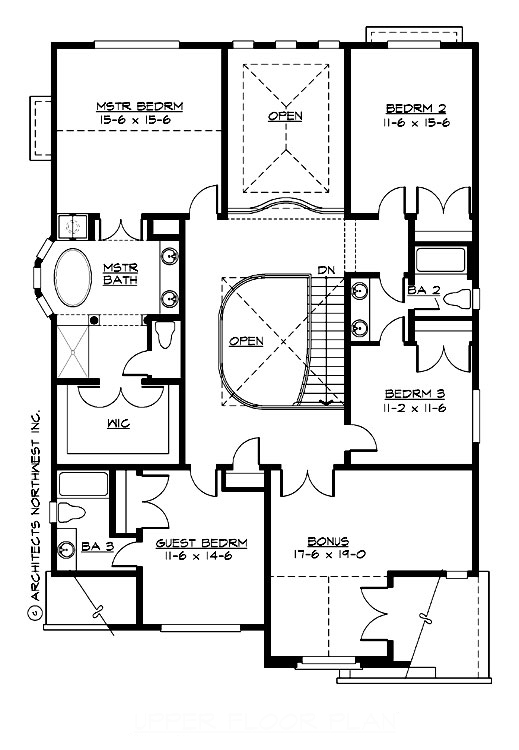
- Upper Floor:1878 Sq. Ft.
- Garage Floor:572 Sq. Ft.
General Information
- Stories:2
- Width:40'-0"
- Depth:60'-0"
- Height:35'-0"
Architectural Style
- Chateau
- European
- Traditional
Number of Rooms
- Bedrooms:4
- Full Baths:3
- Half Baths:1
Garage
- Garage Size:3
- Garage Door Location:Front
- Garage Type: Tandem
Roof Pitches
- Primary:8:12
- Secondary:12:12
Wall Heights
- Main:9'-0"
- Upper:8'-0"
Foundation Type
- Crawl Space
Roof Framing
- Trusses
Floor Load
- Live (lbs):40 PSF
- Dead (lbs):10 PSF
Roof Load
- Live (lbs):25 PSF
- Dead (lbs):15 PSF
- Wind:85 MPH
Design Features
- Bonus Space @ & Upper Floor
- Den/Office
- Front Porch
- Great Room
- Laundry Room @ Main Floor
- Master Bedroom @ Upper Floor Rear
- Chateau House Plans
- European House Plans
- Traditional House Plans
- Narrow Lot House Plans
- View Lot (Rear) Plans






