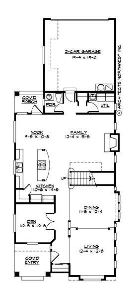
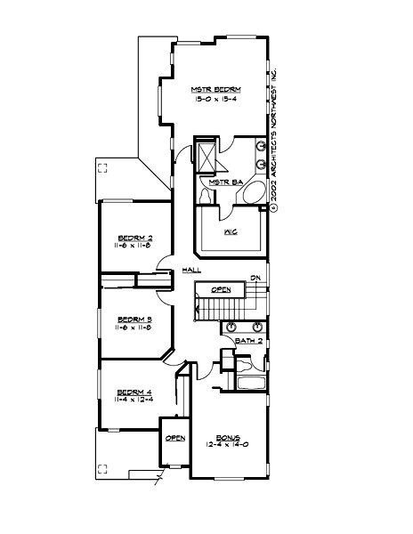
Area Summary
- Total Area:2825 Sq. Ft.
- Main Floor:1300 Sq. Ft.
- Upper Floor:1525 Sq. Ft.
- Garage Floor:400 Sq. Ft.
General Information
- Stories:2
- Width:28'-0"
- Depth:71'-0"
- Height:27'-6"
Architectural Style
- Chateau
- European
- Traditional
Number of Rooms
- Bedrooms:4
- Full Baths:2
- Half Baths:1
Garage
- Garage Size:2
- Garage Door Location:Rear
Roof Pitches
- Primary:12:12
- Secondary:6:12
Wall Heights
- Main:9'-0"
- Upper:8'-0"
Foundation Type
- Crawl Space
Roof Framing
- Trusses
Floor Load
- Live (lbs):40 PSF
- Dead (lbs):10 PSF
Roof Load
- Live (lbs):25 PSF
- Dead (lbs):15 PSF
- Wind:85 MPH
Design Features
- Bonus Space @ & Upper Floor
- Den/Office
- Rear Porch
- Great Room
- Laundry Room @ Main Floor
- Master Bedroom @ Upper Floor Rear
- Chateau House Plans
- European House Plans
- Traditional House Plans
- Narrow Lot House Plans












































